Chung cư TNR Goldmark City

Shophouse Bình Minh Garden Đức Giang Long Biên

Shophouse Bình Minh Garden Đức Giang nằm trong quần thể dự án Bình Minh Garden với tổng diện tích 40.118,9m2 do công ty cổ phần đầu tư và phát triển bất động sản thế kỷ Ceninvest làm chủ đầu tư, Shophouse Bình Minh Garden thuộc địa phận số 93 Đức Giang, Long Biên, Hà Nội. Đây là vị trí đắc địa tại mảnh đất rồng thiêng Long Biên được bao bọc bởi 2 cong sông Hồng và Sông Đuống với những thuận lợi về giao thông và phong thủy. Shophouse Bình Minh Garden hứa hẹn mang đến cho khách hàng một cuộc sống xanh hiện đại với những tiện ích nội khu đẳng cấp vượt trội.


Shophouse Bình Minh Garden


Shophouse Bình Minh Garden thừa hưởng trọn vẹn toàn bộ tiện ích đẳng cấp của khu vực như bệnh viện đa khoa Đức Giang, học viện hậu cần, Big C Long Biên, trường quốc tế Alexandre Yersin, Aeon Mall Long Biên, Vincom Plaza Long Biên...


SHOPHOUSE BÌNH MINH GARDEN 93 ĐỨC GIANG


Tên dự án: Bình Minh Garden
Chủ đầu tư: Công ty cổ phần Đầu tư và Phát triển Bất động sản Thế kỷ – CenInvest
.

Vị trí: Số 93 phố Đức Giang, phường Đức Giang, quận Long Biên, Hà Nội. 

Diện tích quy hoạch: 40.118,9 m2. 

Diện tích khu thấp tầng: 16.122,1 m2

Mật độ xây dựng khu thấp tầng: 70%

Quy mô dự án gồm: 101 lô nhà liền kề diện tích từ 78,7m2 – 169,5m2, cao 5 tầng, 2 mặt tiền 4,5m – 10,5m

Loại hình sở hữu: Sổ hồng vĩnh viễn.


Shophouse Bình Minh Garden


 VỊ TRÍ SHOPHOUSE BÌNH MINH GARDEN LONG BIÊN


Shophouse Bình Minh Garden nằm ở số 93 đường Đức Giang, phường Đức Giang, quận Long Biên, Thành Phố Hà Nội, được đánh giá có vị trí vàng gần sông Hồng, và Trung tâm Thành Phố đảm bảo 3 tiêu chí chọn lựa nhà, “nhất cận giang, nhà cận thị, tam cận lộ”.


Shophouse Bình Minh Garden


Phía Tây Bắc: Giáp đường Đức Giang ( dài 380m). 

Phía Đông Bắc: Giáp đường Đức Giang ( dài 70m). 

Phía Đông Nam: Giáp khu dân cư hiện hữu ( dài 380m). 

Phía Nam: Giáp ngõ 97 Đức Giang – ô tô đi được ( dài 60m).

Xung quanh là hệ thống cơ sở hạ tầng phát triển đồng bộ dẫn đến các kết nối tiện ích ngoại khu, với vị trí đó Bình Minh Garden 93 Đức Giang, Long Biên gần với một số điểm như: 

Cách cầu Chương Dương 5,5 km 

Cách cầu Đông Trù 1,5km 

Cách Aeon Mall Long biên 6,5km. 

Cách trung tâm quận Hoàn Kiếm 8km.


Shophouse Bình Minh Garden

 

Với vị trí được quy hoạch ngay gần khu trung tâm, giao thông thuận lợi gần Sân bay Gia Lâm, Shophouse Bình Minh Garden Long Biên cư dân dễ dàng di chuyển tới sân bay Nội Bài và các tỉnh lân cận. Shophouse Bình Minh Garden gần bến xe Gia Lâm, Ga Long Biên, ga Hà Nội. 

Các nhu cầu sống cơ bản như đi lại, giáo dục, y tế đều được kết nối một cách thuận tiện nhất giúp cuộc sống của những cư dân tương lai tại Bình Minh Garden Long Biên an lành.


LIỀN KỀ SHOPHOUSE BÌNH MINH GARDEN ĐỨC GIANG


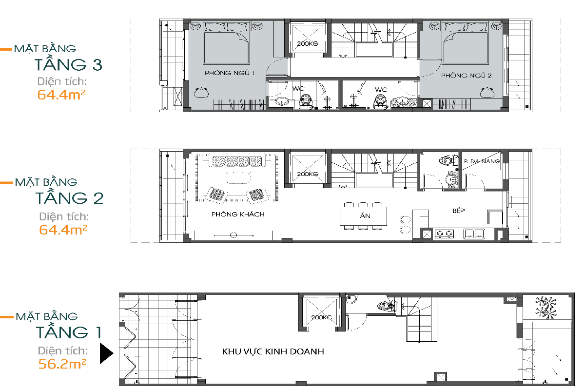
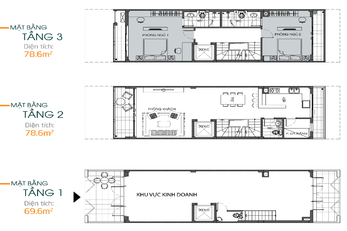
Khu liền kề shophouse Bình Minh Garden có 101 lô nhà liền kề shophouse diện tích từ 78,7m2 – 169,5m2, cao 5 tầng, 2 mặt tiền 4,5m – 10,5m.

Shophouse tại Bình Minh Garden được thiết kế thông minh, hài hòa nhằm mang đến chất lượng sống tốt nhất, tuyệt vời nhất cho cư dân của dự án. 


Shophouse Bình Minh Garden

 

 

Số lượng căn shophouse thấp chỉ 101 lô liền kề

Các căn hộ được xây dựng với mật độ xây dựng cao

Các căn hộ có từ 2 đến 3 phòng ngủ: 

Diện tích đất: 78.7m2 ,94,6m 2( căn tiêu chuẩn). Từ 124,4– 133,9 m2 (căn góc). 

Diện tích xây dựng: 285,8 m2 đến 460m2 

Phòng ngủ: 4 phòng ngủ và 1 phòng người giúp việc. 

Phòng vệ sinh: 05 phòng. 

Kích thước: Từ 6m X 15m, 5m X 18m và 6m X 16m. 

Đường nội khu: Rộng 15m, Lòng đường 7m, vỉa hè mỗi bên 3m 

Hướng nhà: Tây Bắc, Đông Nam, Đông Bắc Và Tây Nam 

Mức độ hoàn thiện : Hoàn thiên mặt ngoài và bàn giao thô bên trong. 

Hình thức sử hữu: Sổ đỏ lâu dài. 

Tình trạng: Đang xây dựng, Bàn giao vào Quý 4/2019.


 

Shophouse Bình Minh Garden

 

Shophouse Bình Minh Garden

 

 

Shophouse Bình Minh Garden

 

Shophouse Bình Minh Garden

 

Shophouse Bình Minh Garden

 

Shophouse Bình Minh Garden

 

Shophouse Bình Minh Garden

 

Shophouse Bình Minh Garden

 

Shophouse Bình Minh Garden

 

Shophouse Bình Minh Garden



TIỆN ÍCH BÌNH MINH GARDEN 93 ĐỨC GIANG

 

Với khát vọng kiến tạo một không gian sống hiện đại cho cư dân, chủ đầu tư CenInvest đã mạnh tay trong việc đầu tư hệ thống tiện ích sang trọng, hiện đại. Theo đó, lựa chọn Bình Minh Garden Long Biên là nơi an cư hàng ngày cư dân sẽ được tận hưởng.


Shophouse Bình Minh Garden

 

 

Hệ thống không gian xanh, vườn hoa được bố trí phân tán đều khắp các khu vực trong dự án, đảm bảo các yếu tố về sinh thái và môi trường.


Shophouse Bình Minh Garden

 

 

Shophouse Bình Minh Garden

 

Trung tâm thương mại hiện đại

Khu vui chơi trẻ em 

Phòng tập gym hiện đại đạt chuẩn 

Nhà Trẻ 

Bể bơi ngoài trời  

Sảnh tiếp đón sang trọng, lịch sự


TIẾN ĐỘ THANH TOÁN BÌNH MINH GARDEN 93 ĐỨC GIANG

 

Tiến độ thanh toán Shophouse Bình Minh Garden Đức Giang


Đợt 1: Thanh toán 30% giá trị căn hộ khi ký HĐMB 

Đợt 2: Thanh toán 10% giá trị căn hộ khi xây đến tầng 4 

Đợt 3: Thanh toán 10% giá trị căn hộ khi xây đến tầng 9 

Đợt 4: Thanh toán 10% giá trị căn hộ khi xây đến tầng 14 

Đợt 5: Thanh toán 10% giá trị căn hộ khi cất nóc 

Đợt 6: Thanh toán 25% giá trị căn hộ + 2% phí bảo trì khi nhận bàn giao căn hộ 

Đợt 7: Thanh toán 5% giá trị căn hộ khi nhận giấy chứng nhận quyền sở hữu căn hộ.

 


 

Tiến độ thực tế dự án Bình Minh Garden:

 


Shophouse Bình Minh Garden

 

Shophouse Bình Minh Garden

 

Shophouse Bình Minh Garden

 

Shophouse Bình Minh Garden

 

Shophouse Bình Minh Garden

 

Shophouse Bình Minh Garden


Đăng ký mua Shophouse Bình Minh Garden Đức Giang liên hệ: 

 

Phòng kinh doanh dự án- Hotline: : 0973 366 255

This website was created for free with Own-Free-Website.com. Would you also like to have your own website?
Sign up for free